Description
Rèf.: HM-UX-OL-T4-lot4
Découvrez « La Triollière », un nouveau programme situé à Unieux, composé de 4 maisons avec jardin et garage, proposées en accession sécurisée.
Offrez-vous une maison sur les hauteurs, dans un quartier résidentiel calme et verdoyant, à deux pas des commerces et des grands axes.
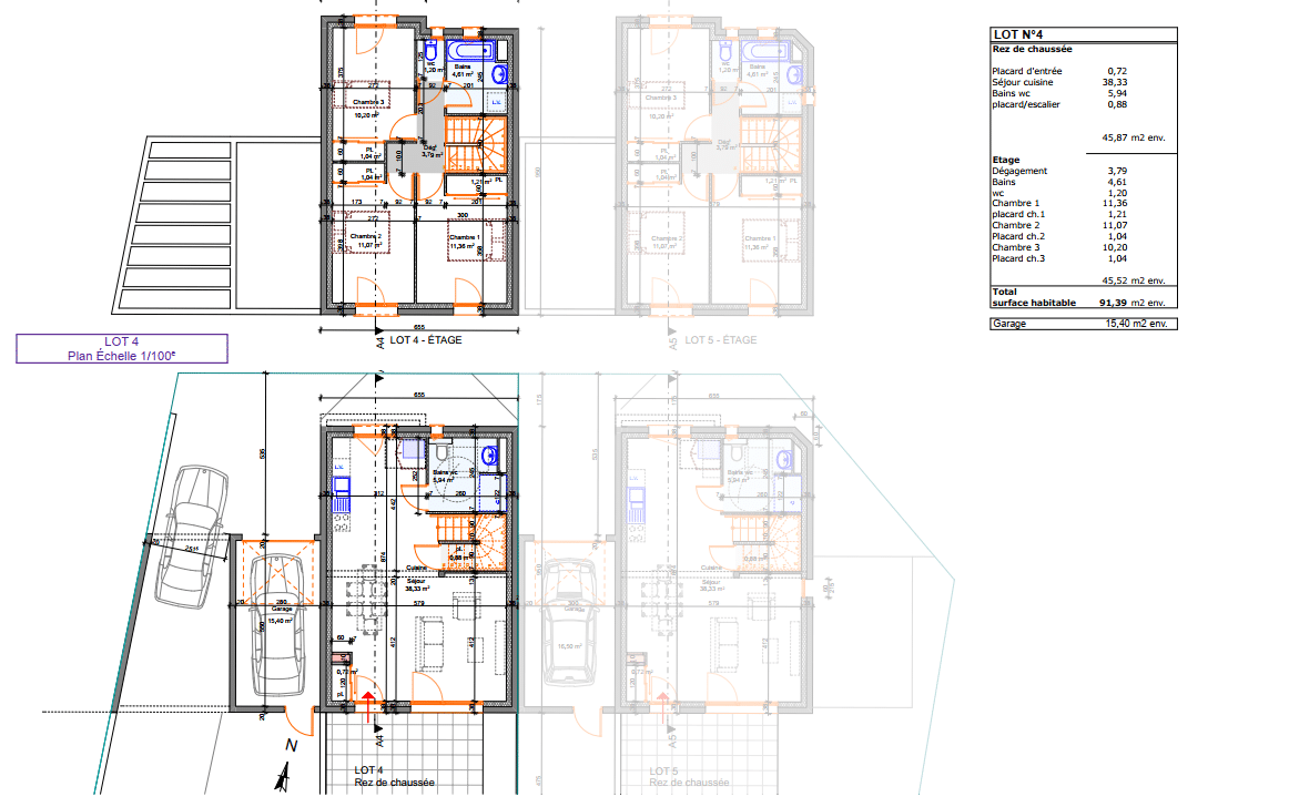
Cette maison de quatre pièces, offre une surface de 91.39 m² et se compose :
- Au rez-de-chaussée : un hall d’entrée avec placard, une cuisine, un séjour donnant sur une terrasse et d’un point d’eau avec toilette.
- A l’étage : un dégagement, trois chambres avec placards aménagés, une salle de bain et un WC séparé.
Les atouts :
- Accession sécurisée grâce au dispositif PSLA (Prêt Social Location-Accession)
- Garage et carport
- Volets roulants électriques pour plus de confort et de sécurité
- Chauffage performant par pompe à chaleur avec plancher chauffant
Les avantages de votre future acquisition :
- Exonération de taxe foncière pendant 15 ans
- TVA réduite à 5,5 %
- Aucun frais d’agence
- Garantie de rachat et de relogement
Architecture contemporaine avec isolation de qualité RE2020.
Renseignements au 04 26 84 08 19
Les informations sur les risques auxquels ce bien est exposé sont disponibles sur le site Géorisques https://www.georisques.gouv.fr
Rue Arlette Barriol
Aucun frais d’agence
Frais de notaires réduits
Proposé par