Retour

Plus que 2 lots disponibles !

SAINT-JEAN-BONNEFONDS SAINT-JEAN-BONNEFONDS

245 000 €
Contactez-nous

Description

Rèf.: HM-SJB-OL-T4-lot4

Découvrez « Puits Lucy », un nouveau programme situé dans le quartier Le Fay à Saint-Jean-Bonnefonds. Il se compose de 5 maisons avec jardin et garage, proposées en accession sécurisée.

Saisissez l’opportunité d’acquérir l’une des deux dernières maisons disponibles dans un quartier résidentiel paisible et verdoyant. Profitez d’un cadre de vie agréable, avec une vue dégagée sur la vallée du Furan et la commune voisine de La Talaudière.

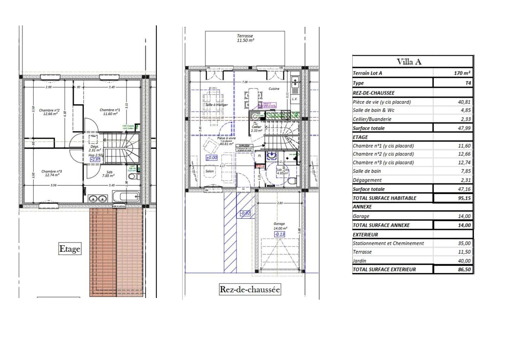
Cette maison de quatre pièces, d’une surface habitable de 95,15 m², se compose :

  • Au rez-de-chaussée : un hall d’entrée avec placard, une cuisine ouverte sur le séjour donnant sur la terrasse et le jardin, ainsi qu’une salle de bain avec toilettes.
  • A l’étage : un dégagement, trois chambres équipées de placards aménagés et une salle de bain avec toilettes.

Les atouts :

  • Accession sécurisée grâce au dispositif PSLA (Prêt Social Location-Accession)
  • Garage et jardin
  • Volets roulants électriques pour plus de confort et de sécurité
  • Chauffage performant par pompe à chaleur avec plancher chauffant
  • Logement livré avec murs et plafonds peints

Les avantages de votre future acquisition :

  • Exonération de taxe foncière pendant 15 ans
  • TVA réduite à 5,5 %
  • Aucun frais d’agence
  • Garantie de rachat et de relogement

Architecture contemporaine avec isolation de qualité RE2020.

Renseignements au 04 26 84 08 19

Les informations sur les risques auxquels ce bien est exposé sont disponibles sur le site Géorisques https://www.georisques.gouv.fr

type_de_bien Maison
types_d’appartements 4 pièces
taille_m 95 m2
etage ème étage
chambre 3 chambres
sdb 2 sdb
jardin Jardin
terrasse Terrasse
parking Garage
chauffage pompe à chaleur
énergie DPE (pas d'informations, non soumis, vierge)

Rue du Puits Lucy


04 26 84 08 19

Ce bien vous intéresse ?
Contactez-nous !

Aucun frais d’agence

Frais de notaires réduits

Proposé par

Synergie Habitat