Retour

Maison 4 pièces avec garage et jardin

Unieux Unieux

249 000 €
Contactez-nous

Description

Rèf.: HM-UX-SL-T4-lot9

Venez découvrir « La Triollière », un nouveau programme à Unieux, comprenant 4 maisons avec jardin et garage, proposées en accession sécurisée.

Offrez vous une maison situé sur les hauteurs d’Unieux dans un secteur résidentiel paisible et verdoyant, à proximité des axes routiers et des commerces.

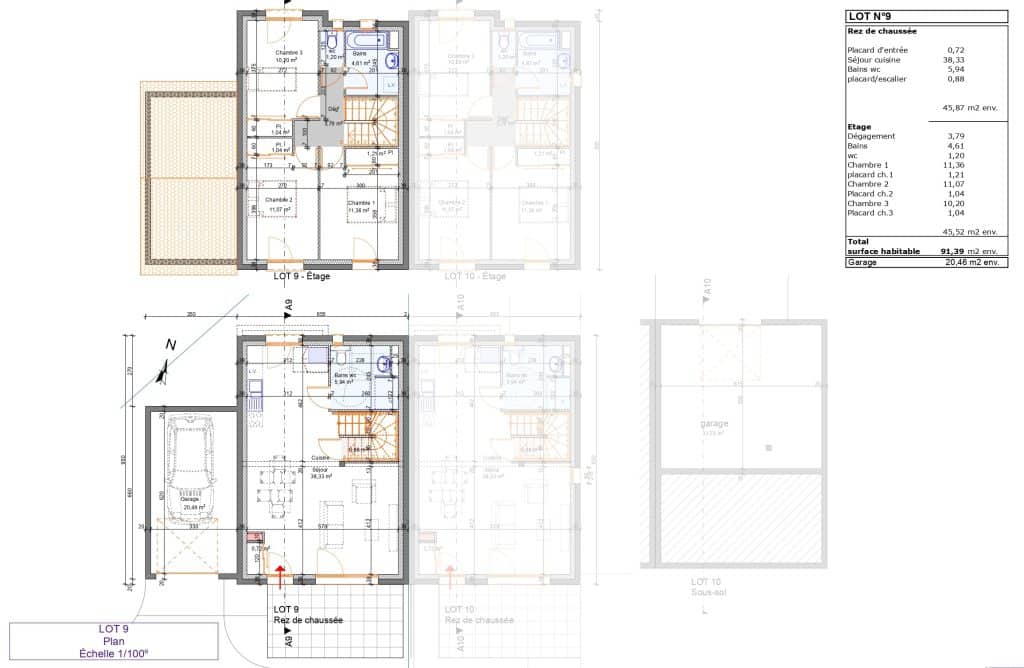
Cette maison de quatre pièces, offre une surface de 91.39 m² et se compose :

  • Au rez-de-chaussée : un hall d’entrée avec placard, une cuisine, un séjour donnant sur une terrasse et d’un point d’eau avec toilette.
  • A l’étage : un dégagement, trois chambres avec placards aménagés, une salle de bain et un WC séparé.

Points forts :

  • Accession sécurisée en PSLA
  • Garage
  • Volets roulants électriques
  • Chauffage par pompe à chaleur avec plancher chauffant

Avantages :

  • Exonération de Taxe Foncière pendant 15 ans
  • TVA à 5.5 %
  • Aucun frais d’agence
  • Garantie de rachat et de relogement

Architecture contemporaine avec isolation de qualité RE2020.

Renseignements au 04 26 84 08 19

Les informations sur les risques auxquels ce bien est exposé sont disponibles sur le site Géorisques https://www.georisques.gouv.fr

 

type_de_bien Maison
types_d’appartements 4 pièces
taille_m 91.39 m2
etage ème étage
chambre 3 chambres
sdb 1 sdb
jardin Jardin
terrasse Terrasse
parking Garage
chauffage pompe à chaleur
énergie DPE : 0
A
B
C
D
E
F
G
GES GES : 0
A
B
C
D
E
F
G

Rue Arlette Barriol

Aucun frais d’agence

Frais de notaires réduits

Proposé par

Synergie Habitat