Description
Rèf.: HM-SJB-OL-T4-lot1
Découvrez « Puits Lucy », un nouveau programme situé dans le quartier Le Fay à Saint-Jean-Bonnefonds composé de 5 maisons avec jardin et garage, proposées en accession sécurisée.
Offrez-vous une maison dans un quartier résidentiel paisible et verdoyant, offrant un cadre de vie agréable avec une vue dégagée sur la vallée du Furan et la commune voisine de La Talaudière.
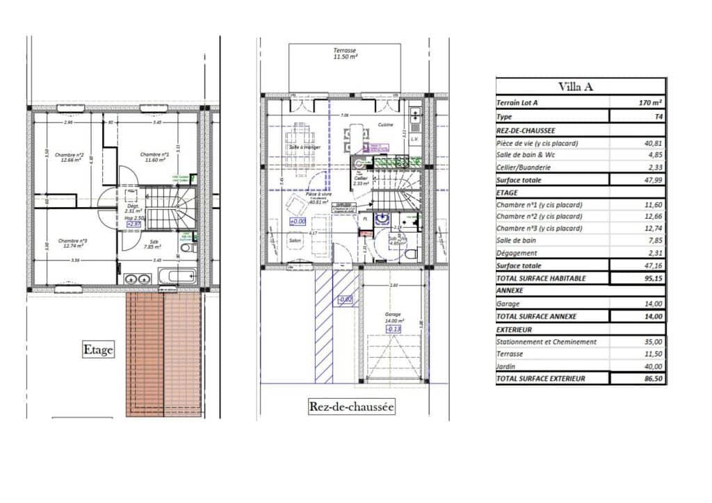
Cette maison de quatre pièces, offre une surface de 95.15 m² et se compose :
- Au rez-de-chaussée : un hall d’entrée avec placard, une cuisine ouverte sur le séjour donnant sur la terrasse et le jardin et d’une salle de bain avec toilette.
- A l’étage : un dégagement, trois chambres avec placards aménagés et une salle de bain avec toilette.
Les atouts :
- Accession sécurisée grâce au dispositif PSLA (Prêt Social Location-Accession)
- Garage et jardin
- Volets roulants électriques pour plus de confort et de sécurité
- Chauffage performant par pompe à chaleur avec plancher chauffant
- Logement livré avec murs et plafonds peints
Les avantages de votre future acquisition :
- Exonération de taxe foncière pendant 15 ans
- TVA réduite à 5,5 %
- Aucun frais d’agence
- Garantie de rachat et de relogement
Architecture contemporaine avec isolation de qualité RE2020.
Renseignements au 04 26 84 08 19
Les informations sur les risques auxquels ce bien est exposé sont disponibles sur le site Géorisques https://www.georisques.gouv.fr
Rue du Puits Lucy
Aucun frais d’agence
Frais de notaires réduits
Proposé par 
 
 
 
 
 
 
 
 
                                 
                                 
                                